「徳丸ハイツ 103号」 熊本県人吉市願成寺町のアパート (3DK)

株式会社 南九州不動産

0966-22-4111

〒868-0057 熊本県人吉市土手町32

営業時間:9:00~17:00 定休日:日曜・祝祭日

lv

「徳丸ハイツ 103号」 熊本県人吉市願成寺町のアパート (3DK)

東小学校区・第一中学校区3K〜3LDK5万円〜アパート東校小学校区・第一中学校区フリーレント物件

「徳丸ハイツ 103号」 熊本県人吉市願成寺町のアパート (3DK)

フリーレント(家賃1ヶ月無料)
種別
アパート
所在地
熊本県人吉市願成寺町
物件名
徳丸ハイツ
部屋番号(区画)
103
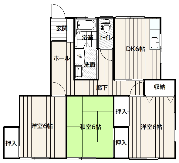
間取
3DK
専有面積
64.09㎡
賃料
55,000円
敷金
2ヶ月
仲介手数料
1.1ヶ月
管理費等
なし
礼金
なし
保険加入
要(2年間/16,000円)
賃貸保証加入
要(ナップ賃貸保証:総賃料の50%~)
建築構造
木造
階建/階
2階建/1階
築年月
1997年4月
総戸数
5戸
駐車場
有り
交通/最寄停留所までの所要時間
路線バス / 北願成寺停留所まで徒歩3分
契約期間
2年
現況
空家
入居可能日
即時
設備
バス・トイレ別、シャワー、給湯、温水洗浄便座、室内洗濯機置場、靴箱
周辺環境
・人吉市立東小学校 距離1500m
・人吉市立第一中学校 距離2800m
・ローソン 願成寺町店 距離500m
備考
フリーレント(家賃1ヶ月無料)
取引態様
媒介
情報公開日
2026年1月17日
次回更新予定日
2026年5月1日

TOP