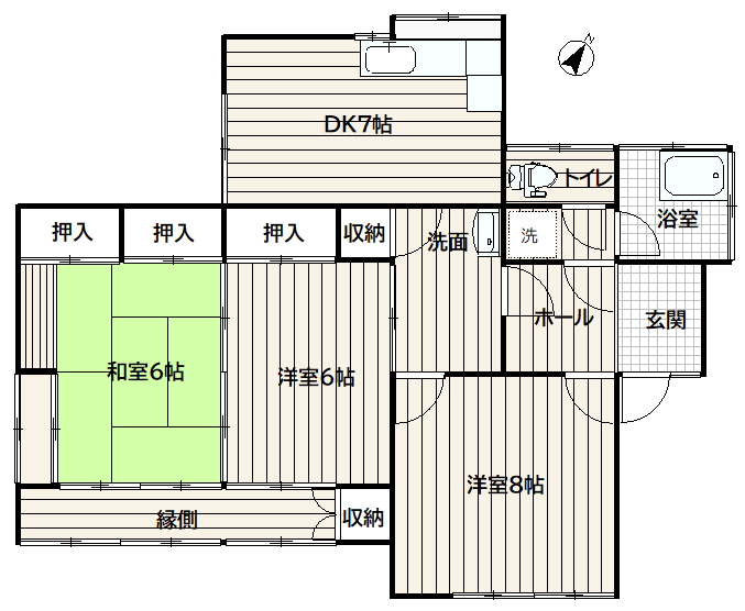
「瓦屋町住宅 」 熊本県人吉市瓦屋町の一戸建て (3DK)

株式会社 南九州不動産

0966-22-4111

〒868-0057 熊本県人吉市土手町32

営業時間:9:00~17:00 定休日:日曜・祝祭日

lv

「瓦屋町住宅 」 熊本県人吉市瓦屋町の一戸建て (3DK)

西小学校区・第二中学校区3K〜3LDK5万円〜西校小学校区・第二中学校区戸建

「瓦屋町住宅 」 熊本県人吉市瓦屋町の一戸建て (3DK)

種別
戸建て
所在地
熊本県人吉市瓦屋町
物件名
瓦屋町住宅
間取
3DK
専有面積
74.74㎡
賃料
50,000円
敷金
2ヶ月
管理費等
なし
礼金
なし
仲介手数料
1.1ヶ月
保険加入
要(2年間/16,000円)
賃貸保証加入
要(ナップ賃貸保証:総賃料の50%~)
建築構造
木造
階建/階
平家建
築年月
1965年11月
総戸数
1戸
駐車場
有り
交通/最寄停留所までの所要時間
路線バス /瓦屋町所停留所まで徒歩1分
契約期間
2年
現況
空家
入居可能時期
即時
設備
バス・トイレ別、給湯、シャワー、洗面台、室内洗濯機置場
周辺環境
・人吉市立西小学校 距離550m
・人吉市立第二中学校 距2000m
・セブンイレブン 瓦屋町店 距離170m
取引態様
媒介
情報公開日
2026年2月22日
次回更新予定日
2026年5月1日

TOP